Penthouse de vanzare in Torrevieja, Spania
APARTAMENTE NOI ÎN TORREVIEJA Apartamente și penthouse-uri noi în Torrevieja.…
Văndut
Va rugam sa ne contactati pentru oferte similare
Proiect de construcție de vile individuale în San Javier.
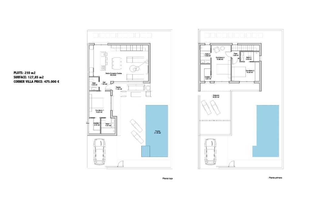
Vilele noi sunt distribuite pe două etaje, plus o terasă spațioasă cu vedere frumoasă asupra împrejurimilor.
La parter se află un living luminos cu bucătărie deschisă și acces la terasă, o cameră dublă cu dulap și o baie.
La primul etaj se află 2 dormitoare spațioase, unul cu dulap încorporat și celălalt cu dressing și baie en suite.
Grădină privată cu piscină și loc de parcare.
San Javier este aproape de toate facilitățile, cu acces ușor la plajă, sporturi acvatice, magazine și rețeaua de transport.
Aici puteți bucura de toate facilitățile pe care San Javier le oferă, cum ar fi magazinele locale, barurile și restaurantele, precum și fiind aproape de centre comerciale, aeroportul Murcia și toate locurile frumoase de pe Mar Menor.
Aeroportul Corvera/Murcia se află la 30 de minute distanță, iar aeroportul Alicante la 45 de minute distanță.
APARTAMENTE NOI ÎN TORREVIEJA Apartamente și penthouse-uri noi în Torrevieja.…
Clădire rezidențială elegantă, la 60 m de plaja El Acequion…
€185,000 Euro
Apartamente moderne nou construite în centrul orașului Torrevieja – La…
€154,000 Euro
Apartament de vanzare in Algorfa, Spania
Contul bestimo.ro va permite sa administrati si sa modificati anunturile cand este necesar.
Datele contului vor fi trimise pe email, verificati si in spam.